2020年に建てられたばかりの石神井小学校の増築計画について、新たな図面が10月7日の文教児童青少年委員会で報告されました。(これまでの経緯はこちらをご覧ください。)同校は区内で運動場が二番目に狭く、増築によってさらに狭くなることなどが懸念されていました。今回の案では、運動場がこれ以上狭くならないよう建物の面積を15%削ったことが報告、あわせて学校の近くに800㎡の土地を学校拡張用地として購入したことが報告されました。
1. 増築の経緯
2024年12月に実施された保護者説明会において、練馬区は地域の人口が急増しており、現在の生徒数620名(23学級)が2030年までに870名(29学級)に達すると試算。普通教室だけでなく、少人数教室、ねりっこクラブの不足も顕著となることから、練馬区は急遽増築をすることを決定しました。

参考資料:
2. 運動場について
石神井小学校の運動場面積は3,150㎡で区内の小学校65校の中で2番目に狭い学校です。同様に一人あたりの面積も本年5月現在で4.7㎡(ワースト2位)で、全小学校の平均14.7㎡の3分の1以下になっています。(出典:令和7年度版 練馬区教育要覧)
2024年12月の説明会では学校の南側、校庭に一部かかる形で校舎を増築する計画で、さらに狭くなってしまうことに多くの保護者から反対の意見が寄せられました。(出典:石神井小学校PTA校舎増築対応委員会)
今回、練馬区は増築する建物について、運動場ではなく遊具や低木が植えられた地域のみにスケールダウンする計画を報告。その結果、運動場の面積はこれまで通りとなることになりました。ただし、区が想定する2030年時点では、仮に在籍数870人・運動場3,150㎡とした場合の一人当たり校庭面積は約3.6㎡となる試算で、区内の小学校で最下位、相対的に厳しい水準が続く見込みです。
- 2024年12月に示された図面

- 今回(2025年10月)示された図面

3.新たな土地は?
こうした中で、練馬区は本年1月、石神井小学校拡張用地として石神井町5丁目、学校から5分程度に位置する生産緑地を購入しています。
面積:824.51㎡、
住所:練馬区石神井町5丁目1061番4
購入金額:3億7千8百万円

こちらについて、第二運動場として整備する可能性もあるとのことです。同土地を加えると運動場面積は約4千㎡となります。現在は基金として購入した状態にあり、今後教育委員会が入手した段階において、具体的な利用や整備の方法などを検討していくとのことです。
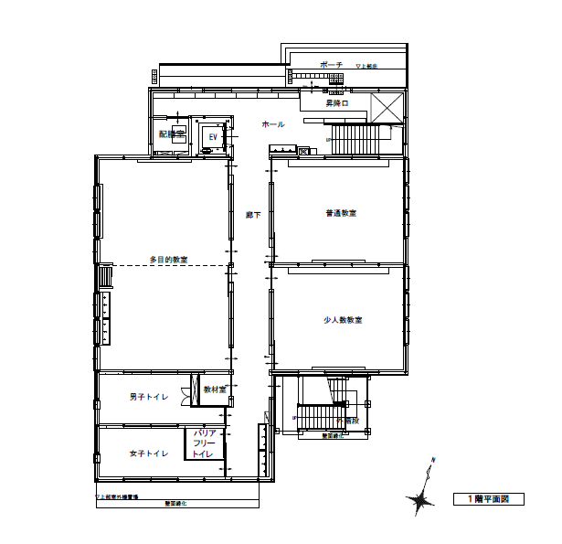
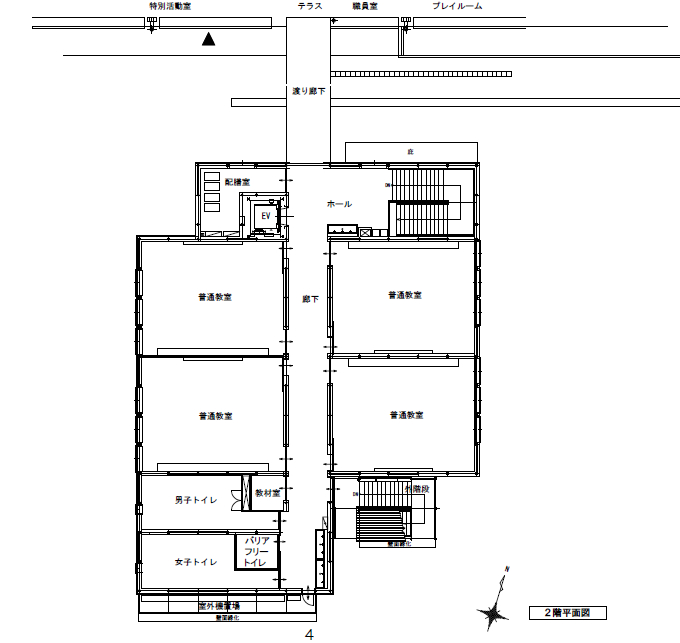
3. 増築される建物は?
12月の説明会では延床面積 約1,130㎡と説明されていましたが運動場への影響を勘案して縮小し、今回は延床面積は960㎡、約15%ほど縮小されています。その結果、教室などに変更はありませんが、当初計画されていた2本の廊下のうち、1本がなくなったとのこと。
- 2024年12月に示された数値

- 今回(2025年10月)に示された数値



4. 今後の予定について
本日の委員会への報告の後、PTAをはじめとした学校関係者への報告が行われるとのこと。あわせて10月中にまちづくり条例の説明会を実施するとのこと。

5. 今後に向けて
石神井小学校の増築について、「石神井小学校PTA校舎増築対応委員会」の資料によると、昨年12月の段階で区の計画に賛成の方は2割弱であり、6割以上の方は現在の増築計画に反対の意思を示されたとのこと。(出典:③これまでの経過)
その理由には、練馬区側からの説明が遅く、保護者との対話の場が不十分だったことなどが挙げられています。区が保護者の充分な理解や合意を得るためには、丁寧な対話を尽くすことが不可欠です。ご意見やご質問などありましたら、ぜひお寄せ頂けたら幸いです。これまでの訴えはこちらをご覧ください。
